Vente appartement La Ciotat terrasse et parking dans résidence sécurisée

263 200 €
Réf. 949.2 - 0134
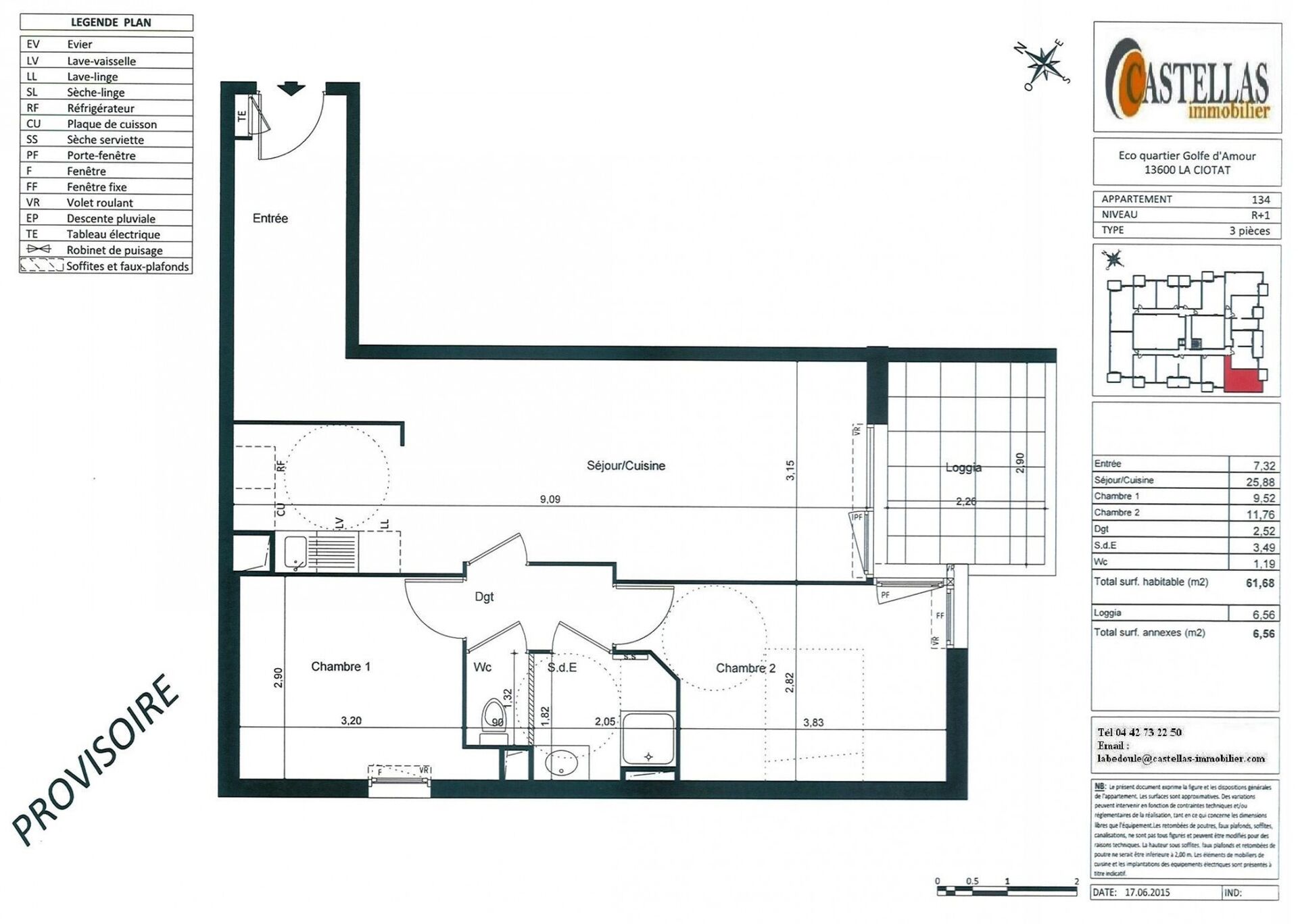
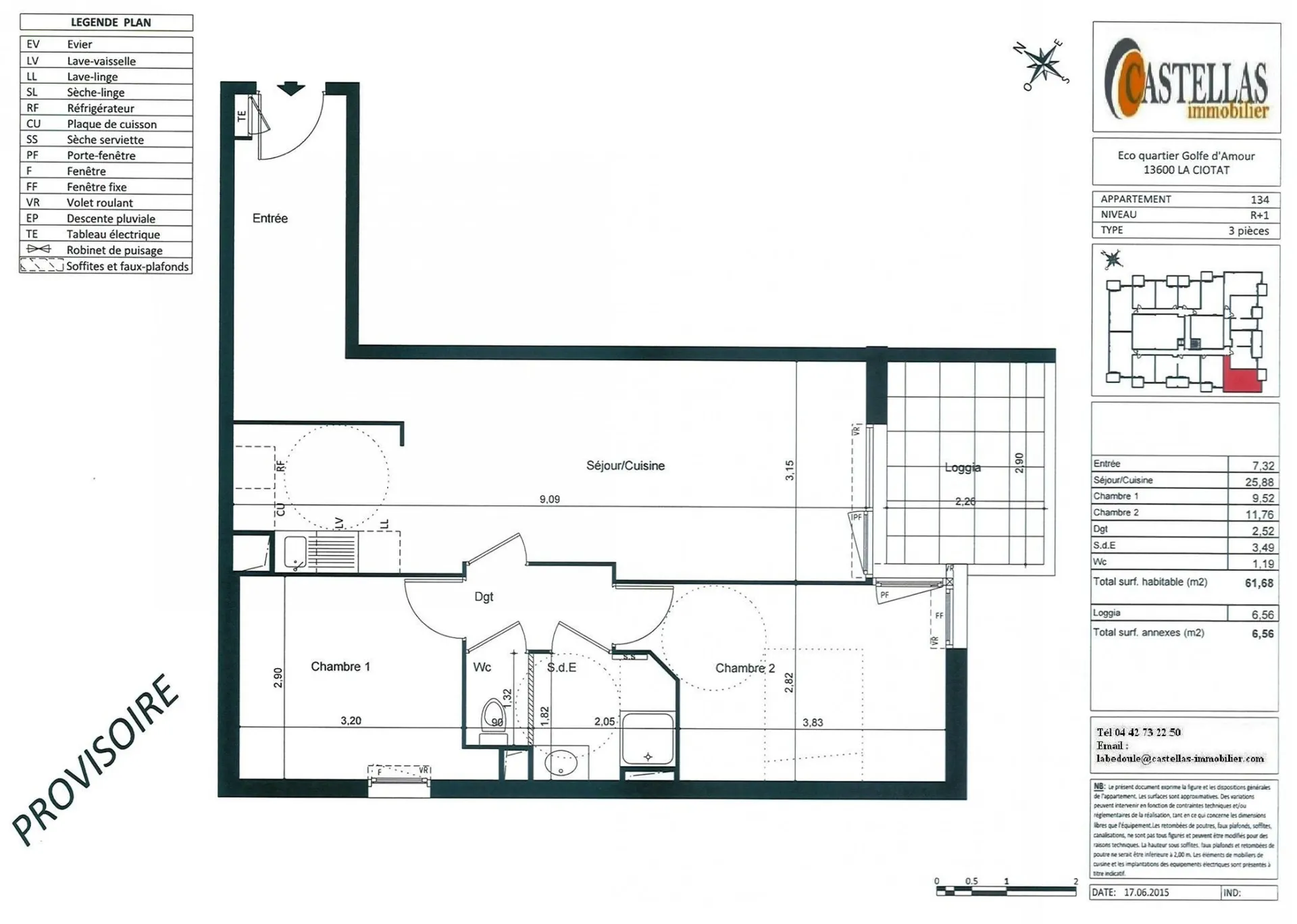
61,68m²
Mettre en favoris
CE BIEN N'EST PLUS A LA VENTE  

CE BIEN N'EST PLUS A LA VENTE  

DÉCOUVREZ NOS BIENS DISPONIBLES A LA VENTE

- LA CIOTAT - Vente appartement dans programme neuf. T2 au premier étage de 61,68m² avec loggia de 6,56m² + parking.

Résidence avec vidéophone, ascenseur, volets roulants aux normes RT2012

Livraison 3ème Trimestre 2017

Agent commercial : Mme Isabelle LEFEVRE

VENTE APPARTEMENT LA CIOTAT

Les informations sur les risques auxquels ce bien est exposé sont disponibles sur le site Géorisques : www.georisques.gouv.fr
imprimer Voir nos honoraires
Année de construction livraison des appartements vers le 3ème trimestre 2017 Niveaux R+1 Surface séjour / cuisine : 25,88m² Surface chambre 1 11,76m² Surface chambre 2 9,52m²
Partager :
Confiez-nous votre projet
Restez informés
Cochez cette case afin de recevoir toutes les actualités et les offres en avant-première et Vous acceptez la Politique de confidentialité de Castellas Immobilier
call